中津市や宇佐市等の地域に密着した情報を!賃貸マンション・賃貸アパート・住宅地や中古住宅等の不動産物件の事なら物件豊富な当社へ

登録・更新日:2025/10/25
 
                                                    | 賃料 | 5万4000円 
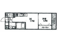
 | 敷金 ・ 礼金 | 1ヶ月 ・ - | 間取り | 2LDK | 
|---|---|---|---|---|---|
| 主要アクセス | 日豊本線 中津駅 から 徒歩77分 | 専有面積 | 54.99m 2 ( 16.63坪 ) | ||










        ![[メールで簡単] この物件を問い合わせる](/img/areaplan/button_mail_head.gif) 
    
| アクセス | 日豊本線 中津駅 から 徒歩77分 | 種別 | アパート・マンション | 
|---|---|---|---|
| 所在地 | 大分県中津市加来 2283-53 | 学校区 | - | 
| 賃料 | 5万4000円 | 管理・共益費 | 3,000円 | 
|---|---|---|---|
| 礼金 | - | 敷金・保証金 | 1ヶ月 ・ - | 
| 償却・敷引 | - | 雑費 | - | 
| 家賃保証会社 | 必加入、 その他、 ジャックス 初回10000円/月額・賃料総額の1% | 保険料 | 2年契約 18,000円 | 
| 契約期間 | - | 更新料 | - | 
| その他費用 (一時金) | 家賃保証料(初回分)、10000円 消毒施工料、17050円 | その他費用 (月次等) | 2台目駐車場、1100円 町内会費、500円 | 
| 間取り | 2LDK | 専有面積 | 54.99m 2 ( 16.63坪 ) | 
|---|---|---|---|
| 構造 | 軽量鉄骨造 | バルコニー面積 | - | 
| 所在階 / 階数 | 2階 / 2階建 | 完成年月 | 2018年03月 ( 築7年 ) | 
| 管理 | - | 総戸数 | - | 
| 駐車場 | 敷地内 ( 月額 3,300円 ) | バイク置場 | - | 
| 駐輪場 | 敷地内 | ||
| リフォーム | - | リノベーション | - | 
| 設備・条件 | 二人入居可/即入居可/二階以上/最上階/対面キッチン/バス・トイレ別/給湯/追い焚き/洗面化粧台独立/シャンプードレッサー/室内洗濯機置場/温水洗浄便座/エアコン/ウォークインクローゼット/インターネット/TVドアホン付き/駐輪場有り/駐車場有り/2台目駐車場/バルコニー/フローリング/シューズボックス/インターネット利用料無料 保証会社加入要/火災保険加入要/駐車場2台目1100円 エアコン2基予定 | ||
| 現況 ・ 入居 | 空室 ・ 即時 | 取引態様 | 仲介 | 
|---|---|---|---|
| 次回更新日 | 2025/11/25 | QRコード | 
   
 QRコードから物件情報を見ることが出来ます。読み取りにくい方はこちらからQRコードを拡大できます。 | 
| 担当者 | - | ||
| R74番館への お問い合わせは株式会社 エリアプラニング 本店まで 
 
 | 
 
                                                     |